If you're remodeling your kitchen, now is the perfect time to add floor heating. Radiant heating enhances comfort, efficiency, and luxury, making your space more inviting year-round. Plus, floor heating can only be installed when you're redoing your flooring, so this is a one-time opportunity to integrate it seamlessly into your renovation.
Comfortable Cooking – Kitchen floors can be cold, especially during meal prep. Radiant heating keeps your feet warm while you cook.
Perfect for Tile and Stone – Kitchen flooring materials like ceramic tile and natural stone conduct cold. Heated floors ensure they stay comfortable year-round.
Energy Efficient – Radiant heating provides even, consistent warmth that's more efficient than forced air systems.
Since floor heating must be installed beneath the flooring, a kitchen remodel is the perfect time to add this luxury feature. Transform your kitchen into a warm, comfortable space for cooking and gathering!
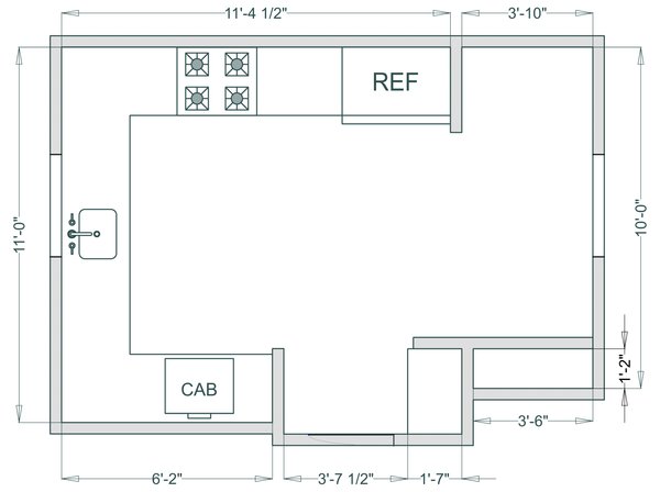
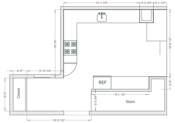
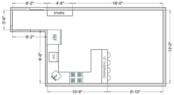
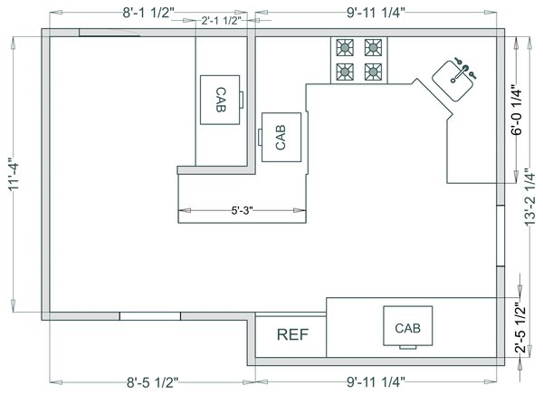
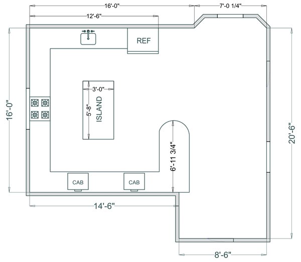
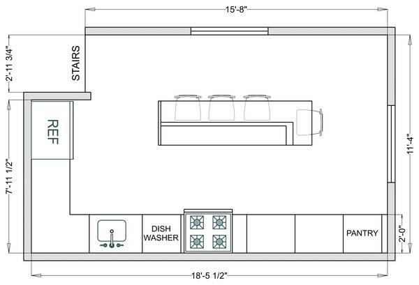
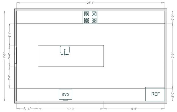
WarmlyYours offers comprehensive kitchen floor plans to suit a variety of layouts. While every kitchen is unique, you're likely to find a plan that closely matches your own.
These plans are supported by detailed product lists and sizes needed for installing electric radiant floor heating. Each plan also includes an overview video to help you follow the steps from start to finish.
You’ll see recommendations for compatible finished floor materials—like tile, marble, or stone—along with system sizing and installation guidance tailored to the layout.
Prefer to customize? Use our Design Tool to adapt an existing layout or create a new design from scratch. Our team is here to help with any questions.