Roof and Gutter Large #1


Flooring Asphalt shingle
Voltage 240V

Installation Options

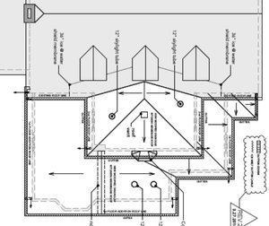
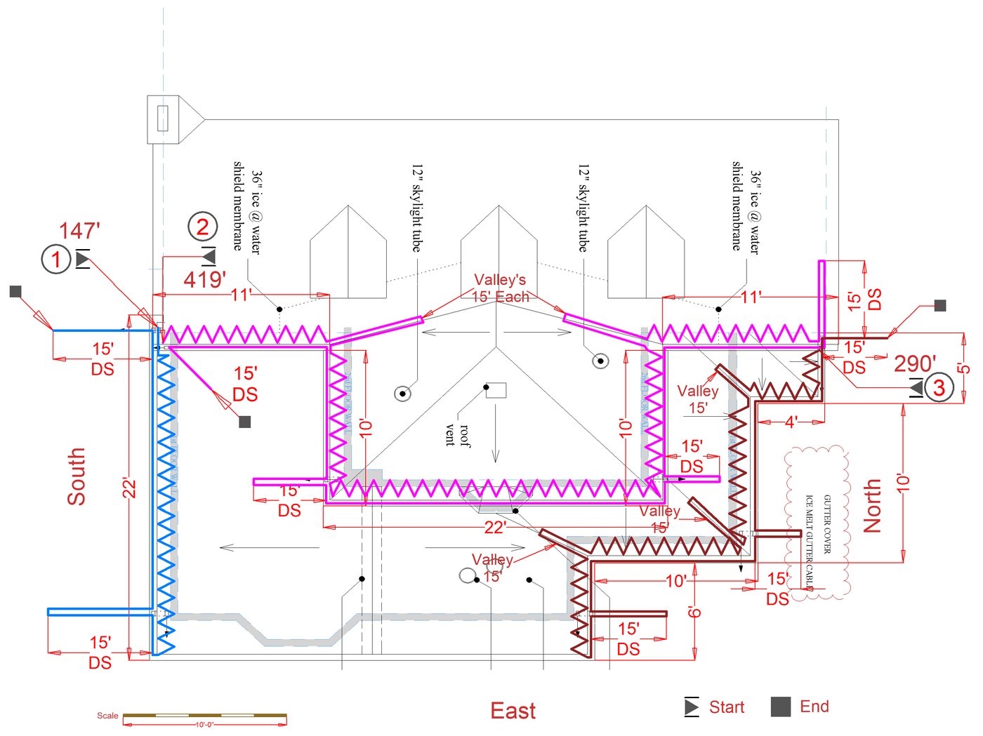
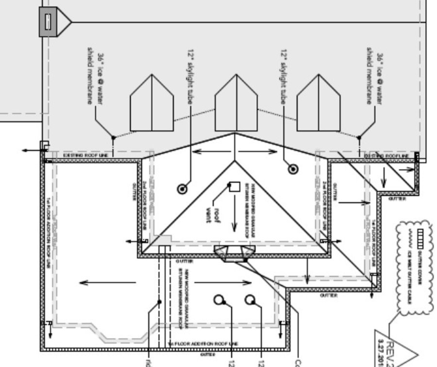
Ice and snow accumulating on your roof or inside your gutters can cause costly water damage to your home or business. WarmlyYours Ice Shield Roof & Gutter Deicing Cable System provides a reliable solution for ice damming that occurs in gutters, downspouts, overhangs, valleys, and bottleneck areas between roof features, such as dormers or adjacent rooflines. If you have any questions about Roof and Gutter De-Icing, you can contact us directly.

Click on any of these available installation options below to see an example floor plan and project breakdown:

  1. Roof and Gutter De-icing
Tell us About your Project Our team of Radiant Experts is ready to help! Just tell us a little about yourself and your project to get started.

Contact Us

Have a question? We're here to help.

Add Photo or Floor Plan

By submitting this form, I understand and agree to WarmlyYours.com's Terms of Use and Privacy Policy.

Please complete the security verification below:

Your information is secure and will never be shared


Installation Options

Roof and Gutter De-icing


These heating cables are designed for safe and effective roof and gutter deicing.

Their high-quality heating cable generates 5-10 watts per lineal foot.

Cost to Operate: $0.00/hour

Estimated Quote


856 x
Roof & Gutter De-icing Cable (1 ft), 5 Watts/ft. 240 V
$4,280.00

Total
$8,734.00