Contact Us After Hours

Loading...

Loading contact options...

Sign In

Loading...

Loading...


Stop Shivering in Your Own Home: Turning Cold Tile into a Warm Welcome

A Seamless Radiant Floor Heating Solution for Your Entryway and Living Spaces in Maple Ridge, BC

Maple Ridge, BC
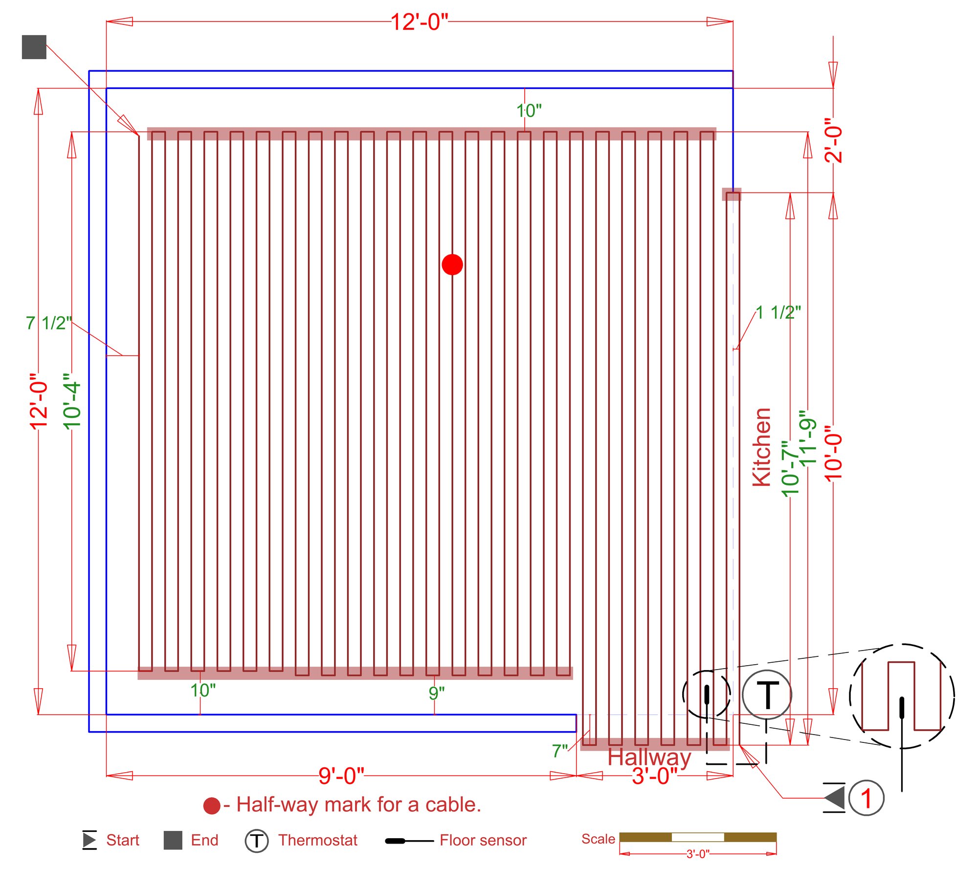
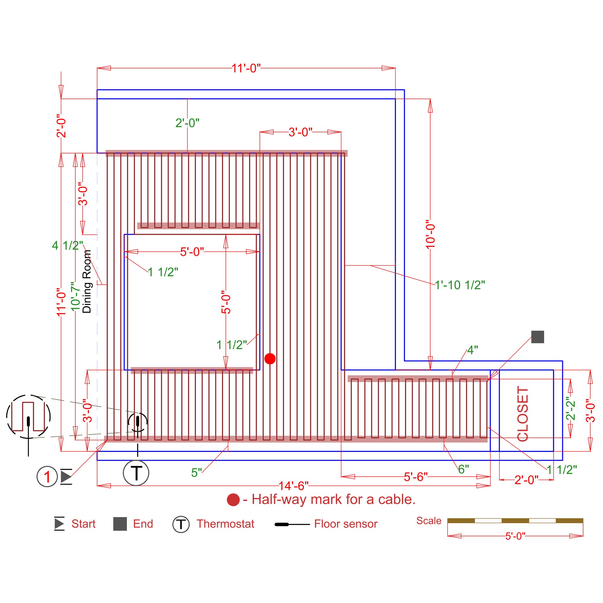
Cable Installation dining
Size: 397 sq.ft. Voltage: 240V Wattage: 4914 W Amps: 21 A Flooring: Tile, Marble or Stone Cost/hr *: $0.58

The "Ice-Block" Effect of Luxury Flooring

Homeowners often invest in beautiful tile for their entryways and hallways, only to realize too late that these surfaces act as heat sinks. In the damp, cool climate of Maple Ridge, British Columbia, a stone floor doesn't just feel "cool"—it feels like walking on a slab of ice. Most people accept this as an unavoidable trade-off for having durable, high-end flooring, relegating themselves to wearing heavy slippers year-round or avoiding these rooms entirely during the winter.

WarmlyYours transformed this Maple Ridge home by installing a high-performance radiant floor heating system that turns these high-traffic areas from "transition zones" into destinations of warmth and comfort.


Project Details

  • Location: Maple Ridge, BC
  • Heated Space Type: Entryway, Hallway, Kitchen, and Powder Room
  • Flooring Type: Tile, Marble, or Stone
  • Total Heated Square Footage: 327 sq. ft. (Coverage for 435 sq. ft. area)
  • System Type: TempZone™ Floor Heating Cable
  • Voltage: 240V
  • Wattage: 4,914 W
  • Amps: 20.3 A
  • Operating Cost:
    • Per Hour: ~$0.54 (Based on local BC Hydro rates of ~$0.11/kWh)
    • Per Day: ~$2.16 (Based on 4 hours of active heating)
    • Per Month: ~$65.00 (Estimated seasonal usage)

Comfort Without Compromise

In a damp climate like Maple Ridge, your entryway is the frontline of your home, yet it’s often the coldest surface you encounter the moment you kick off your shoes. This system replaces that jarring 'ice-block' sensation with an immediate, radiant warmth that dries wet footprints and keeps the chill from creeping into the rest of the house. This project focused on a sprawling 327-square-foot layout spanning from the front door through the kitchen and into the powder room.

The homeowners chose TempZone™ Cable, a flexible solution that allows for custom spacing around cabinetry and tight corners. By installing the cable at a 3.0-inch spacing, the system provides a consistent, even heat that radiates upward, warming not just the floor, but the objects and people in the room. Controlled by three nSpire Touch WiFi thermostats, the home is now divided into smart zones, allowing the owners to heat only the rooms they are using, maximizing energy efficiency without sacrificing an ounce of luxury.

Featured Products

  • TempZone™ Heating Cable (240V): The heart of the system. This ultra-low EMF cable provides maximum flexibility for custom room layouts while maintaining a thin profile that doesn't significantly raise floor height.
  • nSpire Touch WiFi Thermostats: These allow for remote control via smartphone. You can turn the heat up before you get home from a rainy hike at Golden Ears Provincial Park.
  • Circuit Check: A specialized tool used during installation to ensure the heating system is 100% functional before the tile is laid, providing total peace of mind.

* Operating at roughly $0.58 per hour at full power, this system typically costs just $2.32 per day once the smart thermostats begin cycling to maintain your desired temperature. By using WiFi-enabled zoning to heat only active areas, you can enjoy luxury warmth for less than the price of a daily cup of coffee.

Project Gallery

Quotes

These quotes are linked to this showcase and include the products used in this project or recommended for a similar-sized project.

Frequently Asked Questions

Showing all 4 questions

Not at all. Thanks to BC’s relatively low hydroelectric rates, running this system costs roughly $0.54 per hour of active heating. Because the system is controlled by programmable WiFi thermostats, it only draws power when you actually need the warmth.
Yes. In fact, stone and tile are the best conductors for radiant heat. They hold the thermal mass longer than other materials, meaning once the floor reaches your desired temperature, it stays warm with very little additional energy.
While radiant floor heating is an excellent supplemental heat source that eliminates cold spots, its primary goal is "thermal comfort"—making the floor feel warm to the touch and taking the chill out of the air.
Typically, you will feel the heat within 30 to 60 minutes. However, with the nSpire Touch WiFi thermostat, you can program the floor to be at your perfect temperature exactly when you wake up or arrive home.
Tell Us About Your Project

Our team of Radiant Experts is ready to help.

Typically respond within 1 business day