Contact Us After Hours

Loading...

Loading contact options...

Sign In

Loading...

Loading...


From Freezing to Favorite Spot: Living Room Radiant Heating in Greer, SC

A Cozy Transformation Using Environ™ Under-Carpet Heating

Greer, SC
Carpet floor installing (8)
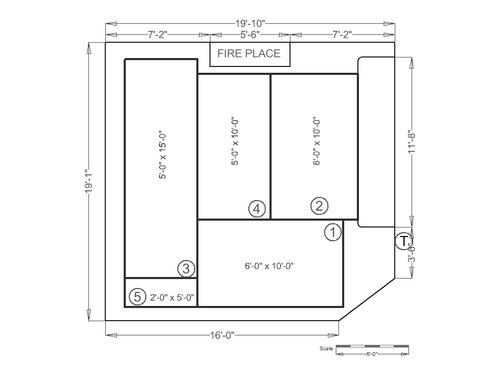
Size: 255 sq.ft. Voltage: 240V Wattage: 3083 W Amps: 12 A Flooring: Carpet (Stretch In) Cost/hr *: $0.43

Noelle and her family in Greer, South Carolina, faced a classic homeowner headache: a beautiful two-story home with an unbalanced HVAC system. The living room was perpetually freezing, while the upstairs was sweltering, leading to massive gas bills and ineffective space heaters. By installing a WarmlyYours in-floor heating system, they not only balanced the temperature but turned their cold floor into the family’s favorite gathering place—while actually lowering their overall energy bills.


Project Details

  • Location: Greer, SC
  • Room Type: Living Room
  • Installer: Profinish Home Improvement
  • Floor Surface: Carpet (Stretch-In)
  • Heated Area: 255 sq. ft.
  • System Specifications:
    • Voltage: 240V
    • Wattage: 3,083 W
    • Amperage: 12 A
  • Operating Cost: $0.43 per hour (based on avg. SC rate of ~$0.14/kWh)
  • Products Used: Environ™ Flex Rolls, SmartStat Programmable Thermostat

Turning a Cold Living Room into a Family Hub

The challenge for Noelle was distinct: her forced-air heating system simply couldn't keep up with the living room without overheating the rest of the house. Gas bills were soaring past $400, and the family was relying on expensive, dangerous space heaters just to be comfortable. They needed a solution that was effective, invisible, and energy-efficient.

The solution came during a scheduled carpet replacement. Noelle opted for the Environ™ II floor warming system, specifically designed for use under carpet. Because the heating mats are ultra-thin and reinforced with foil, they could be installed directly between the carpet pad and the carpet itself. The installation was completed in a single day by Profinish Home Improvement, making it a high-reward renovation with minimal downtime.

The result was immediate and surprising. The radiant floor heating system provided a steady, gentle heat that warmed the objects and people in the room, rather than just blowing hot air at the ceiling. Noelle reports that the living room floor is now the "toasty" center of the home where pets, kids, and guests congregate. Most impressively, despite adding a 3kW heating system, their energy bills dropped because they were able to retire the inefficient space heaters and stop overworking their central furnace.


Featured Products

1. Environ™ Easy Mats (240V) Designed specifically for carpet (and laminate) applications, these non-adhesive foil mats provide uniform heat without raising the floor height significantly. In this project, a combination of mats (6'x10', 5'x15', etc.) was used to cover the large 255 sq. ft. area.

2. SmartStat™ Programmable Thermostat To ensure energy efficiency, this project utilized the TH115-AF-GA-08. This thermostat includes a floor sensor to monitor the exact temperature of the carpet, ensuring the system only runs when necessary to maintain the desired comfort level.

* Based on current average residential electrical rates in Greer, SC ($0.14/kWh), running this powerful 3,083-watt system costs approximately $0.43 per hour of active heating time. Daily (approx. 8 hours run-time): $3.44

Project Gallery

Quotes

These quotes are linked to this showcase and include the products used in this project or recommended for a similar-sized project.

Frequently Asked Questions

Yes, absolutely. The Environ™ line is specifically engineered for carpet (stretch-in) and floating wood floors. It uses a reinforced foil construction that spreads heat evenly without damaging the carpet or the padding, providing a soft, warm surface perfect for living rooms and bedrooms.
It certainly can. As seen in this Greer, SC project, radiant heating allows you to lower your central thermostat (which saves money on heating empty rooms) while keeping the room you are actually occupying warm. Furthermore, it is significantly more efficient than running multiple portable space heaters.
In most cases, yes. This system outputs over 3,000 watts of heat, which acts as a primary heat source for the large living room. By calculating the heat loss of the room prior to installation, WarmlyYours ensures the system provides enough power to replace or supplement the main heating source.
While tile and stone are the most common conductors, modern systems like the Environ™ Flex Roll make carpet, laminate, and floating wood excellent choices. Carpet retains heat well, creating a cozy "thermal bank" that stays warm even after the system cycles off.

Featured Products

Tell Us About Your Project

Our team of Radiant Experts is ready to help.

Typically respond within 1 business day