Contact Us After Hours

Loading...

Loading contact options...

Sign In

Loading...

Loading...


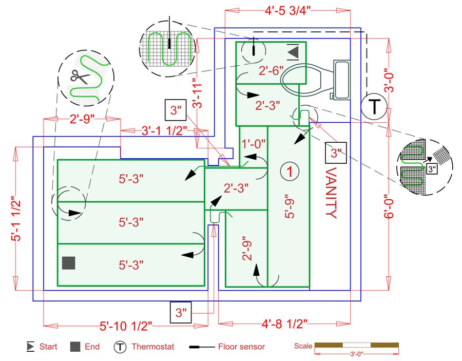
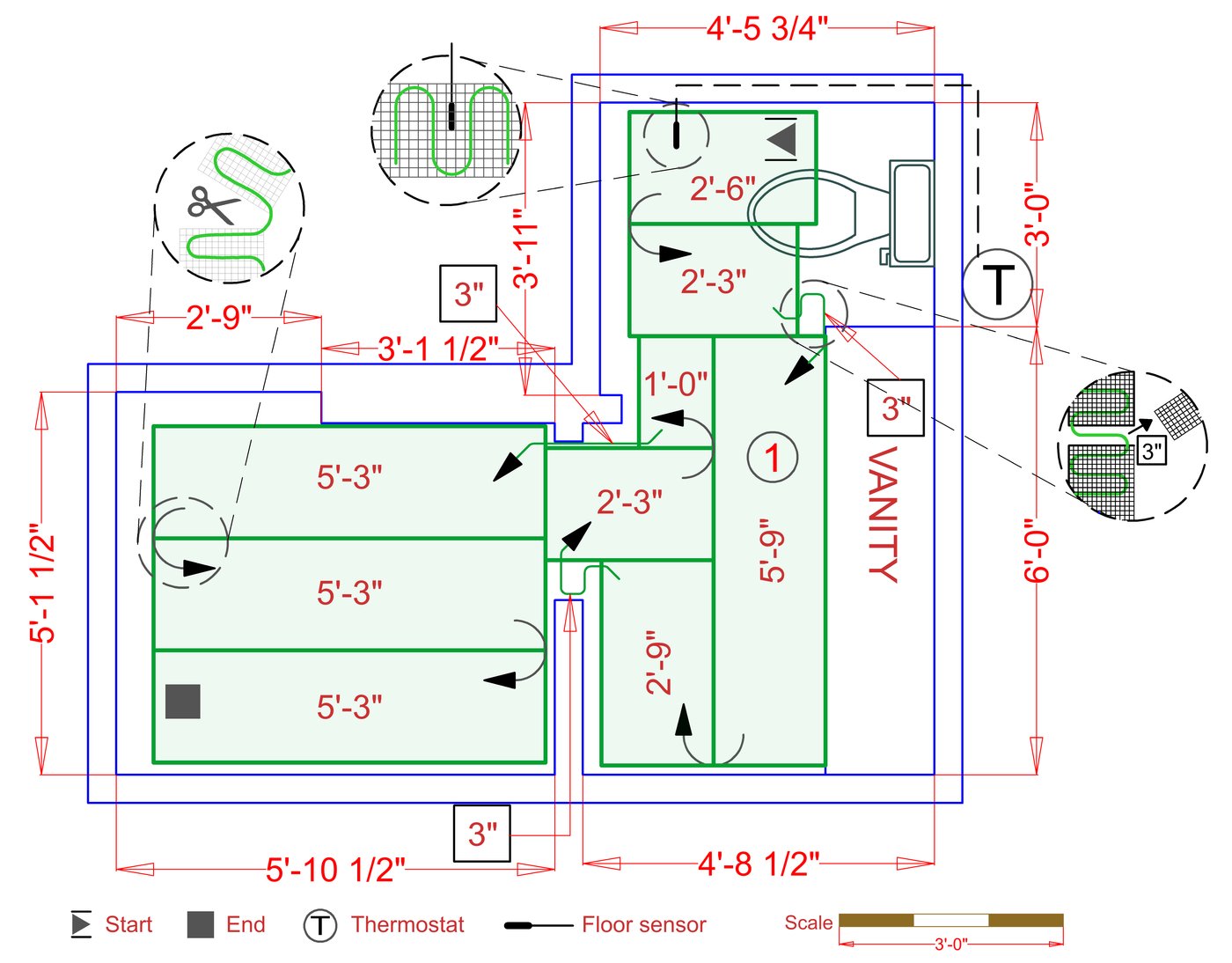
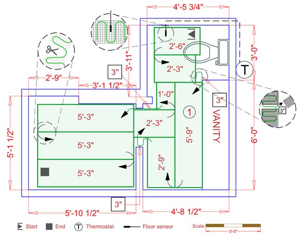
Floor Plan - Project Showcase: Elevating Home Comfort with Radiant Floor Heating


Flooring Tile, Marble or Stone
Subfloor Wood
Heating System Coverage 50 sq. ft.
Voltage 120V

Installation Options

Floor Plan designed by WarmlyYours for the project Project Showcase: Elevating Home Comfort with Radiant Floor Heating

Click on any of these available installation options below to see an example floor plan and project breakdown:

  1. IP1110527-R2
Tell us About your Project Our team of Radiant Experts is ready to help! Just tell us a little about yourself and your project to get started.

Contact Us

Have a question? We're here to help.

Attach images, PDFs, CAD files, or ZIPs (up to 250MB each)

By submitting this form, I understand and agree to WarmlyYours.com's Terms of Use and Privacy Policy.

Please complete the security verification below:

Your information is secure and will never be shared


Installation Options
  • Installation Plan Image

IP1110527-R2


Cost to Operate: $0.05/hour

Estimated Quote


1 x
$15.00

Total
$674.00