Contact Us After Hours

Loading...

Loading contact options...

Sign In

Loading...

Loading...


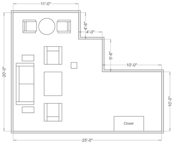
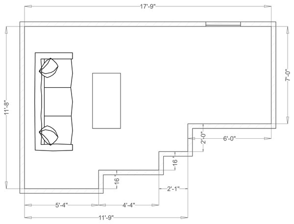
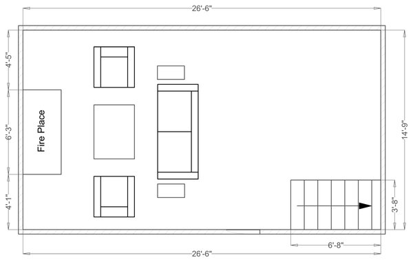
Basement Floor Plans

Basement Floor Plans

Compare Three Floor Heating Options for Your Basement

Planning to add floor heating to your basement? Browse our comprehensive collection to find a layout similar to yours. Each floor plan showcases three installation options so you can compare pricing, products, operating costs, and installation methods side-by-side.

Contact Us
Explore Showcases
Instant Floor Heating Quote

Find Your Basement Layout

Browse our collection of basement floor plans organized by category. Each plan is available with three installation options, complete with pricing, product specifications, and operating cost estimates.

Large Basement Floor Plans

Find large basement designs with complete product lists and installation details.

Medium Basement Floor Plans

Find medium basement designs with complete product lists and installation details.

Small Basement Floor Plans

Find small basement designs with complete product lists and installation details.

Why Choose Radiant Heating for Your Basement?

  • Warm Below-Grade Space – Basements are naturally cold and damp. Radiant heating provides consistent warmth for comfortable living.
  • Perfect for Concrete and Tile – These basement flooring materials conduct cold. Heated floors ensure year-round comfort.
  • Energy Efficient – Radiant heating provides even warmth that's more efficient than forced air systems in below-grade spaces.

Not Sure Which Installation Method is Right for You?

  • Cable with GripStrips Best for irregular layouts, custom designs, and maximum flexibility in placement
  • Cable with Prodeso Ideal when you want crack isolation benefits along with floor heating, especially for tile installations
  • TempZone Mat Perfect for rectangular spaces and straightforward installations with faster setup time

Customize Your Design

While every basement is unique, you're likely to find a plan that closely matches your own. These plans are supported by detailed product lists and sizes needed for installing electric radiant floor heating. Each plan also includes an overview video to help you follow the steps from start to finish.

Prefer to customize? Use our Design Tool to adapt an existing layout or create a new design from scratch. Our team is here to help with any questions.

Get Started Today

Browse the basement plans above to find a layout similar to yours. Click "See Details" on any plan to view all options with complete pricing, product specifications, operating costs, and installation plans.