Contact Us Open

Loading...

Loading contact options...

Sign In

Loading...

Loading...


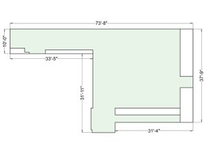
Driveway Large #2


Flooring Asphalt (new)
Heating System Coverage 1465 sq. ft.
Voltage 240V

Installation Options

WarmlyYours offers a selection of snow melting systems that heat driveways, patios, walkways, or stairs and can be installed in asphalt, concrete, or under pavers in mortar. Our snow melting systems are available in two formats: mat and cable. The mats are designed to deliver 50 watts of heat per square foot and allow for quick and easy installation. The cable system allows for maximum flexibility and generates 12 watts per linear foot. Our systems are available with a selection of different controls, each with different specifications to sense things like air temperature or moisture on the pavement.

If you have any questions about which system type would be best for your project, you can contact us directly.

Click on any of these available installation options below to see an example floor plan and project breakdown:

  1. Snow Melt Mats
Tell us About your Project Our team of Radiant Experts is ready to help! Just tell us a little about yourself and your project to get started.

Contact Us

Have a question? We're here to help.

Attach images, PDFs, CAD files, or ZIPs (up to 250MB each)

By submitting this form, I understand and agree to WarmlyYours.com's Terms of Use and Privacy Policy.

Please complete the security verification below:

Your information is secure and will never be shared


Installation Options
  • Installation Plan Image
  • Snow Melt Mat 120V, 2' x 5', 10 sq.ft., 4.2A WHMA-120-0205
  • Baccash Snow Melt Installation 13
  • A before and after image of a heated driveway with a snow melting system installed under pavers.

Snow Melt Mats


WarmlyYours Snow melting mats come with the heating elements pre-attached to a green mesh in a serpentine pattern with consistent 3” spacing which ensures even heating. Mats are faster and easier to install than snow melting cables but a bit more expensive.

Cost to Operate: $7.63/hour

Estimated Quote



Total
$18,200.00