Contact Us Open

Loading...

Loading contact options...

Sign In

Loading...

Loading...


Pipe Large #2


Flooring Pipe
Voltage 120V

Installation Options

Attaching a heating cable to the exterior of the pipe will keep it from freezing. Also known as heat tracing cable or heat tape, this small, flexible cable can be wrapped around the pipe and will maintain the temperature of the pipe, keeping water flowing. If you have any questions about Pipe Freeze Protection, you can contact us directly.

Click on any of these available installation options below to see an example floor plan and project breakdown:

  1. Roof and Gutter De-icing
Tell us About your Project Our team of Radiant Experts is ready to help! Just tell us a little about yourself and your project to get started.

Contact Us

Have a question? We're here to help.

Attach images, PDFs, CAD files, or ZIPs (up to 250MB each)

By submitting this form, I understand and agree to WarmlyYours.com's Terms of Use and Privacy Policy.

Please complete the security verification below:

Your information is secure and will never be shared


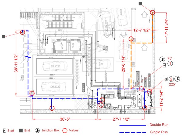
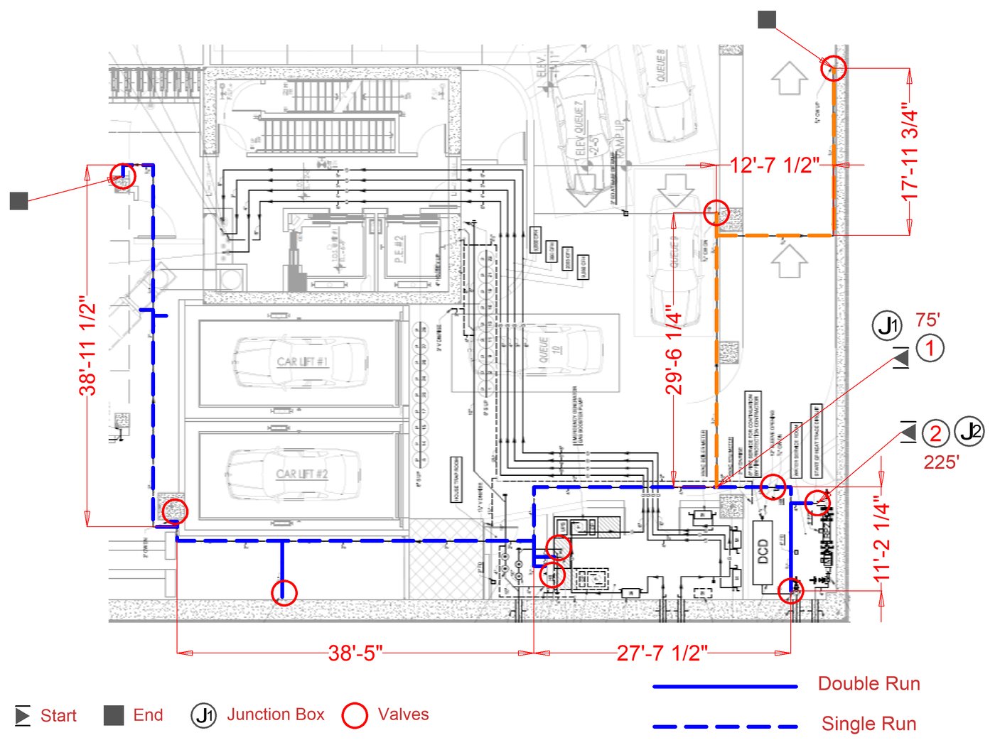
Installation Options
  • Installation Plan Image
  • roof and gutter deicing control air stat
  • Pipe freeze protection heating cable installed on plastic pipe close
  • Pipe freeze protection trace heating cable

Roof and Gutter De-icing


These heating cables are designed for safe and effective roof and gutter deicing.

Their high-quality heating cable generates 5-10 watts per lineal foot.

Cost to Operate: $0.00/hour

Estimated Quote


300 x
PRO-Tect: Pipe Freeze Protection Self-Regulating Heating Cable (Sold by the Foot), 5W/ft. 120 VAC
$1,500.00

Total
$3,168.00