Contact Us After Hours

Loading...

Loading contact options...

Sign In

Loading...

Loading...


Living Room Floor Plans

Living Room Floor Plans

Compare Three Floor Heating Options for Your Living Room

Planning to add floor heating to your living room? Browse our comprehensive collection to find a layout similar to yours. Each floor plan showcases three installation options so you can compare pricing, products, operating costs, and installation methods side-by-side.

Contact Us
Explore Showcases
Instant Floor Heating Quote

Find Your Living Room Layout

Browse our collection of living room floor plans organized by category. Each plan is available with three installation options, complete with pricing, product specifications, and operating cost estimates.

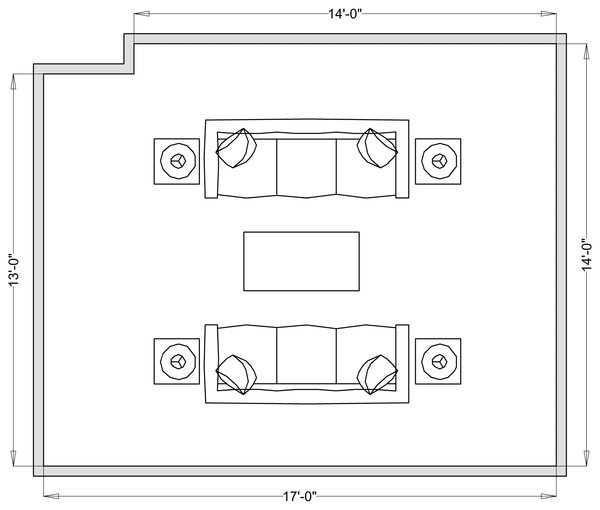
Large Living Room Floor Plans

Find large living room designs with complete product lists and installation details.

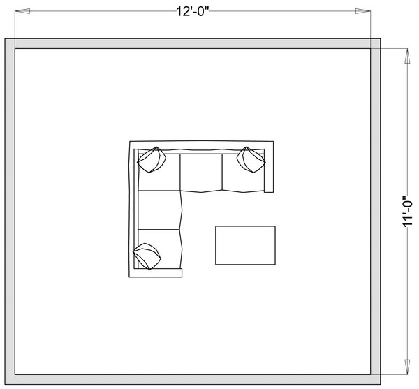
Medium Living Room Floor Plans

Find medium living room designs with complete product lists and installation details.

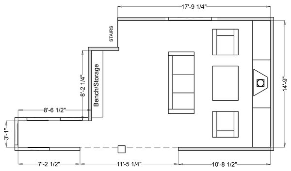
Small Living Room Floor Plans

Find small living room designs with complete product lists and installation details.

Why Choose Radiant Heating for Your Space?

  • Year-Round Comfort – Floor heating provides consistent warmth that eliminates cold spots and keeps your space comfortable.
  • Perfect for Hard Surfaces – Tile, stone, and hardwood floors conduct cold. Heated floors ensure they stay warm and comfortable.
  • Energy Efficient – Radiant heating provides even, consistent warmth that's more efficient than forced air systems.

Not Sure Which Installation Method is Right for You?

  • Cable with GripStrips Best for irregular layouts, custom designs, and maximum flexibility in placement
  • Cable with Prodeso Ideal when you want crack isolation benefits along with floor heating, especially for tile installations
  • TempZone Mat Perfect for rectangular spaces and straightforward installations with faster setup time

Customize Your Design

While every living room is unique, you're likely to find a plan that closely matches your own. These plans are supported by detailed product lists and sizes needed for installing electric radiant floor heating. Each plan also includes an overview video to help you follow the steps from start to finish.

Prefer to customize? Use our Design Tool to adapt an existing layout or create a new design from scratch. Our team is here to help with any questions.

Get Started Today

Browse the living room plans above to find a layout similar to yours. Click "See Details" on any plan to view all options with complete pricing, product specifications, operating costs, and installation plans.