Contact Us After Hours

Loading...

Loading contact options...

Sign In

Loading...

Loading...


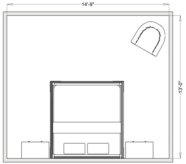
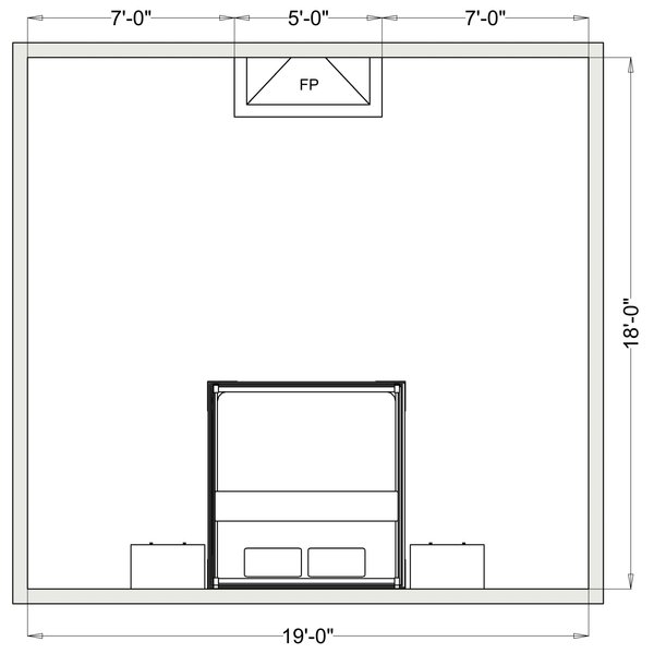
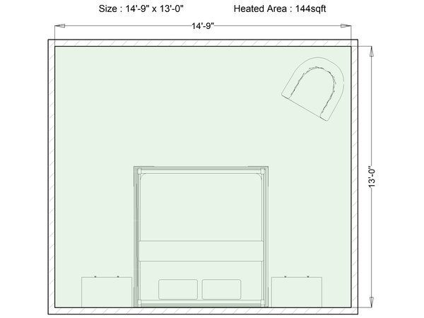
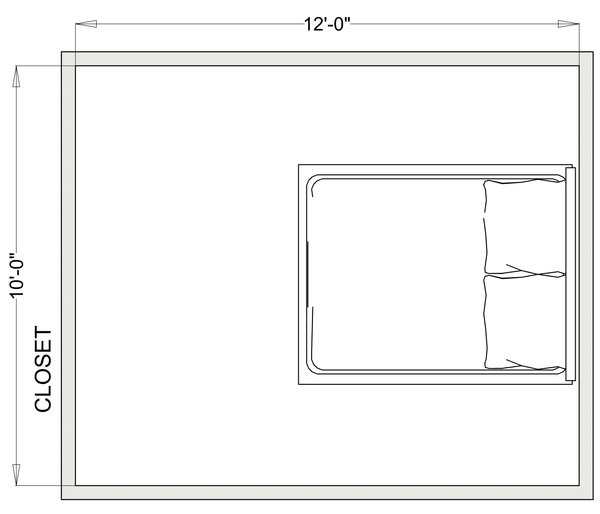
Bedroom Floor Plans

Bedroom Floor Plans

Compare Three Floor Heating Options for Your Bedroom

Planning to add floor heating to your bedroom? Browse our comprehensive collection to find a layout similar to yours. Each floor plan showcases three installation options so you can compare pricing, products, operating costs, and installation methods side-by-side.

Contact Us
Explore Showcases
Instant Floor Heating Quote

Find Your Bedroom Layout

Browse our collection of bedroom floor plans organized by category. Each plan is available with three installation options, complete with pricing, product specifications, and operating cost estimates.

Small Bedroom Floor Plans

Find small bedroom designs with complete product lists and installation details.

Medium Bedroom Floor Plans

Find medium bedroom designs with complete product lists and installation details.

Large Bedroom Floor Plans

Find large bedroom designs with complete product lists and installation details.

Why Choose Radiant Heating for Your Bedroom?

  • Warm Wake-Up – Step out of bed onto warm floors instead of cold surfaces. Radiant heating provides gentle, even warmth throughout your bedroom.
  • Perfect for Hardwood and Tile – These popular bedroom flooring materials can feel cold. Heated floors ensure year-round comfort.
  • Silent Operation – Unlike forced air systems, radiant heating operates silently, perfect for peaceful sleep.

Not Sure Which Installation Method is Right for You?

  • Cable with GripStrips Best for irregular layouts, custom designs, and maximum flexibility in placement
  • Cable with Prodeso Ideal when you want crack isolation benefits along with floor heating, especially for tile installations
  • TempZone Mat Perfect for rectangular spaces and straightforward installations with faster setup time

Customize Your Design

While every bedroom is unique, you're likely to find a plan that closely matches your own. These plans are supported by detailed product lists and sizes needed for installing electric radiant floor heating. Each plan also includes an overview video to help you follow the steps from start to finish.

Prefer to customize? Use our Design Tool to adapt an existing layout or create a new design from scratch. Our team is here to help with any questions.

Get Started Today

Browse the bedroom plans above to find a layout similar to yours. Click "See Details" on any plan to view all options with complete pricing, product specifications, operating costs, and installation plans.