Contact Us After Hours

Loading...

Loading contact options...

Sign In

Loading...

Loading...


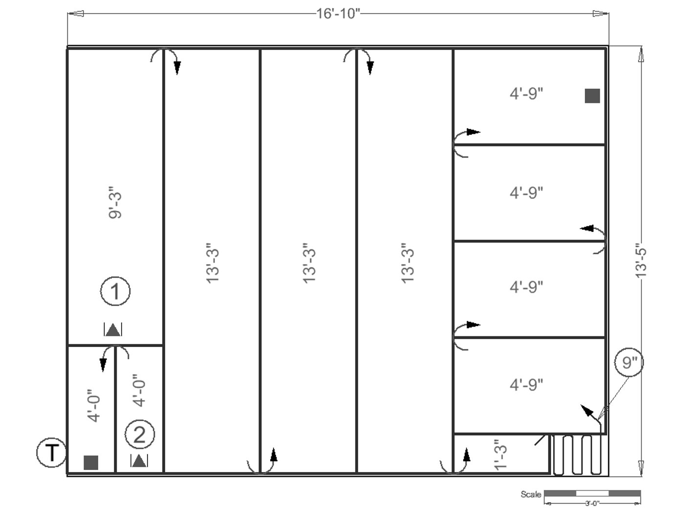
Floor Plan - From Sunroom to Sanctuary: Year-Round Comfort with Radiant Heat in Crystal Lake


Flooring Tile, Marble or Stone
Subfloor Wood
Heating System Coverage 222 sq. ft.
Voltage 240V

Installation Options

Floor Plan designed by WarmlyYours for the project From Sunroom to Sanctuary: Year-Round Comfort with Radiant Heat in Crystal Lake

Click on any of these available installation options below to see an example floor plan and project breakdown:

  1. IP715763-R3
Tell us About your Project Our team of Radiant Experts is ready to help! Just tell us a little about yourself and your project to get started.

Contact Us

Have a question? We're here to help.

Attach images, PDFs, CAD files, or ZIPs (up to 250MB each)

By submitting this form, I understand and agree to WarmlyYours.com's Terms of Use and Privacy Policy.

Please complete the security verification below:

Your information is secure and will never be shared


Installation Options
  • Installation Plan Image

IP715763-R3


Cost to Operate: $0.14/hour

Estimated Quote


2 x
$30.00

Total
$2,308.00