Luxury Warmth for a Coastal Chic Bathroom in Wilmington, NC

A Radiant Upgrade: Electric Floor Warming and a Milan Towel Warmer Deliver Spa-Like Comfort to a Coastal Retreat.

Wilmington, NC
Coastal Chic customer project north carolina floor heating bathroom (2)
Size: 102 sq.ft. Voltage: 120V Wattage: 818 W Amps: 7 A Flooring: Tile, Marble or Stone Surface: Poilished Cost/hr *: $0.04

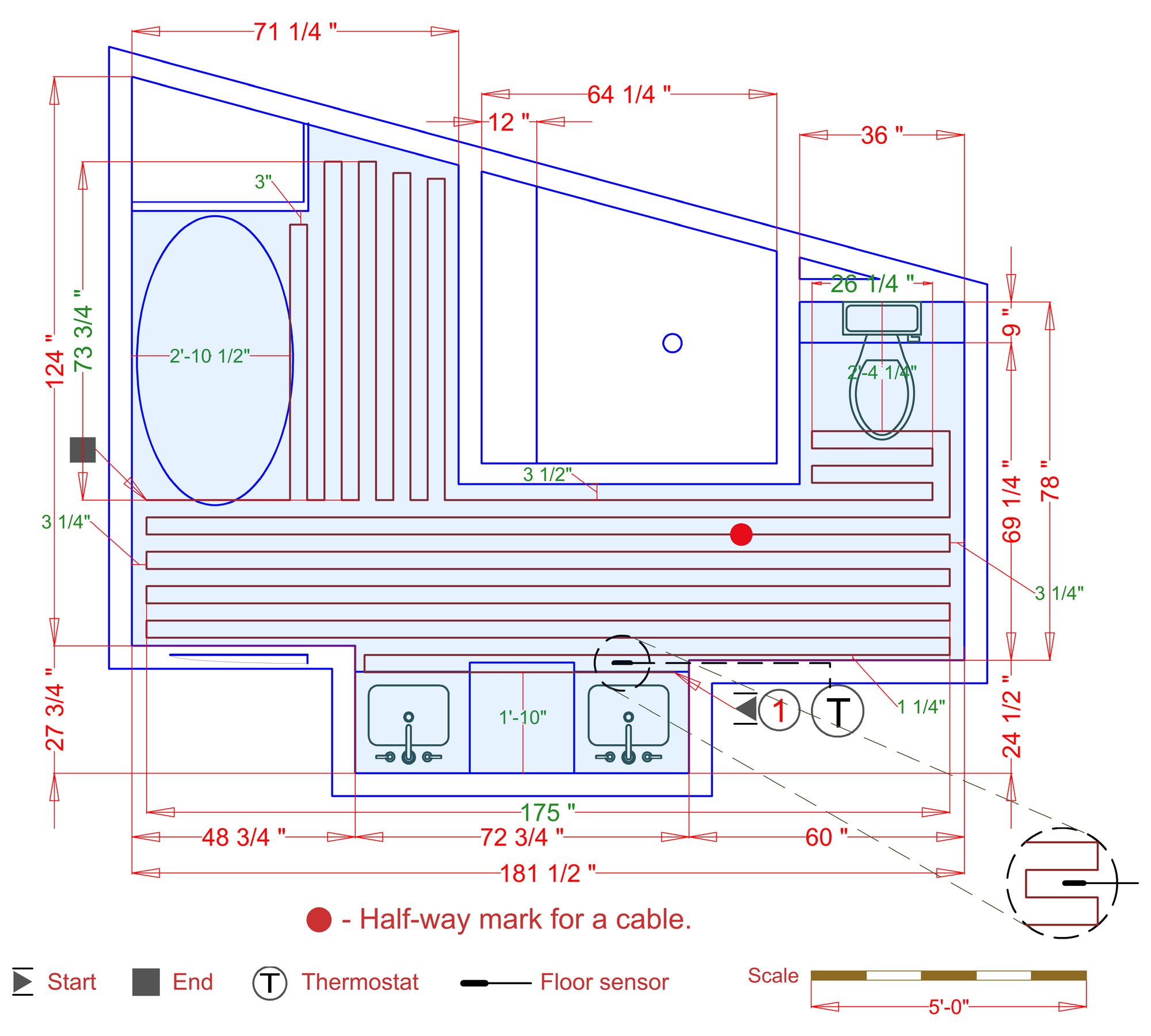
This stunning Coastal Chic bathroom remodel by DreamMaker of Wilmington, NC, was elevated with the installation of a complete electric radiant floor heating system. The homeowner sought to eliminate the shock of cold tile underfoot, a common issue in larger bathrooms. By integrating TempZone Cable not only throughout the main floor but also inside the shower, WarmlyYours provided a comprehensive, energy-efficient solution that transformed the daily routine into a luxurious, spa-like experience, significantly increasing the home's comfort and value.

Project Details

  • Location: Wilmington, NC
  • Heated Space Type: Main Bathroom & Shower
  • Heated Square Footage: 91 sq. ft. (69 sq. ft. main bath + 22 sq. ft. shower)
  • Total Electrical Load:
    • Watts: 818 W
    • Volts: 120 V
    • Amps: 7 A
  • Flooring Surface: Tile, Marble or Stone (Poilished)
  • Operating Cost Per Hour: $0.04
    • Quick Breakdown: Approximately $0.32 per day and less than $10 per month to run.*
  • Products Used: TempZone™ Floor Heating Cable, nSpire Touch Thermostat, Milan 14 Towel Warmer

The Remodel Story

When DreamMaker of Wilmington, NC, took on this Coastal Chic bathroom remodel, the goal was to create a luxurious and comfortable space that matched the high-end design. The homeowners' primary challenge was the consistently cold tile flooring, a problem exacerbated by the coastal climate. Traditional forced-air heating struggles to warm dense tile efficiently, leaving the floor cold to the touch.

The solution was a comprehensive electric floor heating system from WarmlyYours TempZone Cable installed with a Prodeso waterproofing membrane, the installers were able to cover both the main bathroom area and, crucially, the shower floor. This ensures a consistent, gentle heat from wall-to-wall, making stepping onto the floor or into the shower a genuinely comfortable experience. The addition of the large, polished Milan 14 Towel Warmer completed the transformation, providing a warm, dry towel at hand while adding a sophisticated visual element. The result is a highly functional, energy-efficient space that delivers radiant comfort and true year-round luxury.

Featured Products

  • TempZone™ 3.7-Watt Floor Heating CableThe core of the system. High-performance electric radiant floor heating cable installed under the tile, providing consistent, gentle heat.
  • Milan 14 Towel Warmer, PolishedA sleek, hardwired, 14-bar towel warmer in a polished finish. Dries and warms towels and bathrobes, adding a final touch of luxury.
  • nSpire Touch ThermostatA programmable, Wi-Fi-enabled thermostat with a color touchscreen. Allows precise control and scheduling for maximum comfort and energy efficiency.

* This high-performance, 91 sq. ft. in-floor heating system and towel warmer setup is exceptionally affordable to operate. Based on local electricity rates, the combined floor warming system costs just about $0.04 per hour to run. This translates to approximately $0.32 per day or less than $10 per month for luxurious, radiant comfort. The value added—daily comfort, energy savings compared to whole-house heating, and increased home appeal—vastly outweighs this minimal operating cost.

Project Gallery

Quotes

These quotes are linked to this showcase and include the products used in this project or recommended for a similar-sized project.

Frequently Asked Questions


In a project like this 91 sq. ft. bathroom in Wilmington, NC, the cost is very low. This particular electric floor heating system costs approximately $0.04 per hour to operate. This equates to about $0.32 per day if run for 8 hours, making it an extremely energy efficient heating solution for targeted comfort.
Yes, in well-insulated spaces like this upgraded bathroom, an in-floor heating system is often capable of serving as the primary heat source. The system used here, TempZone Cable, is powerful enough to achieve floor-to-ceiling heat, which is a great benefit in the Wilmington area's mild climate. A professional heat loss calculation can confirm if it's sufficient for your specific space.
TempZone Cable is specifically designed for installation under hard-surface flooring that retains heat well, making it ideal for the tile, marble, or stone used in this project. These materials conduct and hold the gentle radiant floor heating extremely effectively, ensuring the heat is evenly distributed and long-lasting.
Absolutely. Electric floor warming systems are highly energy efficient because they heat people and objects directly (radiant heat) rather than heating the air (convection heat). The inclusion of a programmable thermostat, like the nSpire Touch, allows the system to only operate when and where needed, significantly reducing energy waste compared to running a whole-house HVAC system to heat a single room.
Tell Us About Your Project Our team of Radiant Experts is ready to help.

Contact Us

Have a question? We're here to help.

Add Photo or Floor Plan

By submitting this form, I understand and agree to WarmlyYours.com's Terms of Use and Privacy Policy.

Please complete the security verification below:

Your information is secure and will never be shared