Contact Us After Hours
Loading...

Loading contact options...

Sign In
Loading...

Loading...


Patio Layouts

Patio Layouts

Compare Snow Melting Layouts by Category

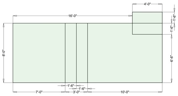
Planning to add snow melting to your patio? Browse our comprehensive collection to find a layout similar to yours. Each layout includes system sizing, recommended products, operating cost estimates, and installation guidance.

Contact Us
Explore Showcases
Instant Snow Melting Quote

Find Your Patio Layout

Browse our collection of patio layouts organized by category. Each layout includes system sizing, recommended products, and operating cost estimates.

Large Patio Layouts

Find large patio designs with complete product lists and installation details.

Medium Patio Layouts

Find medium patio designs with complete product lists and installation details.

Small Patio Layouts

Find small patio designs with complete product lists and installation details.

Why Choose Snow Melting for Your Outdoor Space?

  • No More Shoveling – Eliminate the need for snow removal with automatic snow melting systems. Your outdoor space stays clear and safe.
  • Perfect for Asphalt and Concrete – These outdoor surfaces are ideal for snow melting systems. Professional installation ensures reliable operation.
  • Safety First – Snow melting systems prevent ice buildup, reducing slip hazards and improving safety for your family and visitors.

Customize Your Design

While every patio is unique, you're likely to find a plan that closely matches your own. These plans are supported by detailed product lists and sizes needed for installing snow melting. Each plan also includes an overview video to help you follow the steps from start to finish.

Prefer to customize? Use our Design Tool to adapt an existing layout or create a new design from scratch. Our team is here to help with any questions.

Get Started Today

Browse the patio plans above to find a layout similar to yours. Click "See Details" on any plan to view all options with complete pricing, product specifications, operating costs, and installation plans.