Contact Us After Hours

Loading...

Loading contact options...

Sign In

Loading...

Loading...


True Comfort for a Master Bathroom in Streamwood, IL

A sleek master bath remodel featuring TempZone™ Cable and Prodeso Membrane for the ultimate comfort solution.

STREAMWOOD, IL
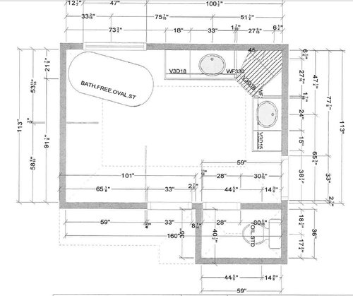
Master Bath Remodel_Vanity area
Size: 120 sq.ft. Voltage: 120V Wattage: 818 W Amps: 6 A Flooring: Tile, Marble or Stone Cost/hr *: $0.06

In Streamwood, Illinois, homeowner Billy Cabrales transformed a standard 120 sq. ft. master bathroom into a sanctuary of modern technology and comfort. By incorporating WarmlyYours radiant floor heating under his new tile, he solved the perennial problem of cold bathroom floors during frigid Midwest winters. This project perfectly blends DIY ingenuity with high-end luxury, adding both tangible value and daily warmth to the home.

Project Details

  • Location: Streamwood, IL
  • Room Type: Master Bathroom
  • Flooring: Tile / Marble / Stone
  • Total Room Size: 120 sq. ft.
  • Heated Area: 69 sq. ft.
  • System: TempZone™ Floor Heating Cable (120V)
  • Wattage: 818 Watts
  • Amperage: 6.8 Amps
  • Operating Cost: $0.12 per hour (at active heating)

Tech-Savvy Comfort

For Billy Cabrales, this master bathroom remodel was about more than just aesthetics—it was about integrating smart home technology to create a truly modern living space. Facing the common challenge of heating a tiled bathroom in the Chicago suburbs, where winters are notoriously harsh, Billy chose to install electric radiant floor heating. The goal was simple: eliminate the shock of stepping onto freezing cold tile in the morning and replace it with a gentle, consistent warmth.

The installation utilized the TempZone™ Floor Heating Cable paired with the Prodeso Membrane. This combination is a favorite among DIY homeowners for its flexibility and speed. The membrane allows for quick cable installation without the need for waiting on mortar to cure, while also providing uncoupling benefits that protect the tile from cracking—a crucial factor for the longevity of stone or marble floors.

Interestingly, this wasn't the only high-tech upgrade Billy added. He also shared his use of automatic window tinting technology in the bathroom—a feature that instantly frosts the glass for privacy at the touch of a button. While unrelated to the heating system, it highlights the forward-thinking, "smart home" approach taken for this entire remodel. Now, the bathroom offers privacy on demand and warmth underfoot, proving that luxury is often just a matter of the right technology.

Featured Products

1.TempZone™ Floor Heating Cable (120V) This free-form cable provides the ultimate flexibility for rooms with obstacles or unique angles. It delivers 3.7 watts per linear foot, ensuring plenty of power to warm tile floors quickly.

  • Best for: Custom layouts, bathrooms with curves/angles.
  • Benefits: Zero EMF, durable twin-conductor design.

2. Prodeso Cable Installation Membrane An uncoupling and crack-isolation membrane that makes installing the heating cable fast and easy.

  • Best for: DIYers and protecting tile investments.
  • Benefits: Holds cable at proper spacing, allows for immediate tiling, and neutralizes subfloor movement to prevent tile cracks.

* Based on current average electrical rates in Streamwood, IL (~$0.14/kWh), running this 69 sq. ft. heated area costs approximately $0.12 per hour of active heating. If you run the system for a typical 4-hour warming cycle per day, that’s less than $0.50 a day or roughly $15.00 a month

Project Gallery

Quotes

These quotes are linked to this showcase and include the products used in this project or recommended for a similar-sized project.

Frequently Asked Questions

Showing all 4 questions

It is surprisingly affordable. For a typical master bathroom like this one in Streamwood, operating costs are often between 10 to 15 cents per hour of active heating. Most systems cycle on and off to maintain temperature, meaning they don't run 100% of the time, keeping daily costs often under $1.00.
In many cases, yes. Electric floor heating produces 40–50 BTUs per square foot, which is often sufficient to heat a bathroom comfortably without needing a forced-air vent, especially if the room has decent insulation.
Tile, marble, and stone are the best conductors for radiant heat. They retain the warmth and radiate it efficiently into the room. However, WarmlyYours also offers systems designed for laminate, vinyl, and even carpet.
While not strictly "mandatory" (you can use fixing strips), the Prodeso Membrane is highly recommended. It speeds up installation significantly, ensures perfect cable spacing, and most importantly, uncouples the tile from the subfloor to prevent cracks caused by house shifting or temperature changes.
Tell Us About Your Project

Our team of Radiant Experts is ready to help.

Typically respond within 1 business day