Contact Us Open
Loading...

Loading contact options...

Sign In
Loading...

Loading...


Stop Tolerating the "Morning Shock": The Cure for Cold Baton Rouge Floors

Master Bathroom & Shower | Tile/Stone | TempZone™ Electric Floor Heating

Baton Rouge, LA
Bathroom Dearman S Flooring Llc After Flooring Installation 1
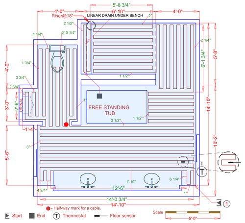
Size: 206 sq.ft. Voltage: 240V Wattage: 1934 W Amps: 8 A Flooring: Tile, Marble or Stone Cost/hr *: $0.21

When a High-End Space Feels Like Ice

In Baton Rouge, we spend thousands on beautiful tile and stone master baths, only to realize that these materials act as "heat sinks"—pulling the warmth straight out of your feet even on a mild Louisiana morning. Most homeowners simply accept the "morning shock" or clutter their floors with rugs to hide the cold. Beyond the chill, large master baths often suffer from dampness and lingering moisture, a common frustration in our humid climate.


Project Details 

  • Location: Baton Rouge, LA
  • Heated Space Type: Master Bathroom & Shower
  • Flooring / Surface Type: Tile / Stone
  • Coverage Type: Full Coverage
  • Total Heated Square Footage: 172 sq. ft.
  • System Type: Electric Radiant Floor Heating (TempZone™ Cable)
  • Voltage: 240V
  • Wattage: 1,934 W
  • Amps: 8.0 A
  • Operating Cost (Local Rate Estimate):
    • Per Hour: ~$0.21
    • Per Use Event (4-hour morning cycle): ~$0.84
    • Per Month (Seasonal usage): ~$25.00
  • Installer: Jeramie Dearman, Dearman's Flooring ( https://www.dearmansflooring.com )
  • WarmlyYours Products Used: TempZone™ Floor Heating Cable, nJoy WiFi Thermostat, Circuit Check.

A Master Craftsman’s Touch

This Baton Rouge residence featured a spacious master suite where the beauty of the floor was overshadowed by its temperature. Installed by Jeramie Dearman of Dearman’s Flooring, a local expert with over 20 years of experience in custom tile and shower work, the project was designed to turn a standard bathroom into a premium retreat.

Because the project included a walk-in shower, Jeramie utilized the flexibility of the TempZone™ Cable system. Spaced at 3.75", the cable was custom-woven throughout the room and directly into the shower pan, ensuring 100% coverage. In the humid Louisiana climate, this system does more than just heat; it actively dries the floor and shower faster, reducing moisture buildup and the mildew risks that often plague Southern bathrooms. With the nJoy WiFi Thermostat, the homeowner now enjoys a bathroom that is perfectly warm the moment they wake up, managed effortlessly from their phone.


Featured Products

  • TempZone™ Floor Heating Cable: The ultimate solution for complex bathroom layouts. It snakes around vanities and into showers to provide heat exactly where you stand.
  • nJoy WiFi Thermostat: Solves the problem of "cold starts." Program your floor to be ready at 6:00 AM or adjust the temperature remotely for maximum efficiency.
  • Circuit Check: A critical peace-of-mind tool used by installers like Jeramie to ensure the heating system is fully functional before the final tile is laid.
  • Prodeso Membrane: This uncoupling membrane serves two vital roles: it provides a precise grid for snapping in the heating cable at consistent intervals and acts as a stress-relief layer. This protects your tile and grout from cracking caused by the natural expansion and contraction of the subfloor.

* At an average rate of $0.11/kWh, this 1,934-watt system costs just $0.21 per hour to run at full power. Once the floor reaches its set temperature, the nJoy thermostat cycles the heat, often reducing actual energy use by 30% to 50%.

Project Gallery

Quotes

These quotes are linked to this showcase and include the products used in this project or recommended for a similar-sized project.

Frequently Asked Questions

Absolutely. While Baton Rouge is warm, tile and stone floors remain cold to the touch. Radiant heat also helps manage indoor humidity, drying surfaces faster and making the bathroom feel less "clammy" in the summer months.
Yes. The TempZone™ system is UL-listed and specifically designed for wet environments. It is a safe, waterproof solution that enhances the comfort of the shower while helping to prevent mold growth on the floor.
Not at all. For a large bathroom of 172 sq. ft., the cost is roughly $25 per month during peak usage. Because it heats your body directly through your feet, you can often lower your home's central heat and save energy overall.
When embedded under tile, the system typically reaches its set temperature in 30–60 minutes. This is why the nJoy WiFi Thermostat is so valuable—you can schedule it to begin warming before you even get out of bed.
Radiant heating must be installed directly beneath the tile or stone. It is the perfect addition during a remodel or new construction, specifically when working with experts like Dearman's Flooring who specialize in integrated tile systems.

Featured Resources

Tell Us About Your Project

Our team of Radiant Experts is ready to help.

Typically respond within 1 business day