Contact Us After Hours

Loading...

Loading contact options...

Sign In

Loading...

Loading...


Luxury Warmth for a Master Bathroom in Portland, OR

Master Bathroom Comfort Upgraded with an Energy Efficient TempZone™ Electric Radiant Floor Heating System.

Portland, OR
Photo of bathroom floor heating with TempZone Mat
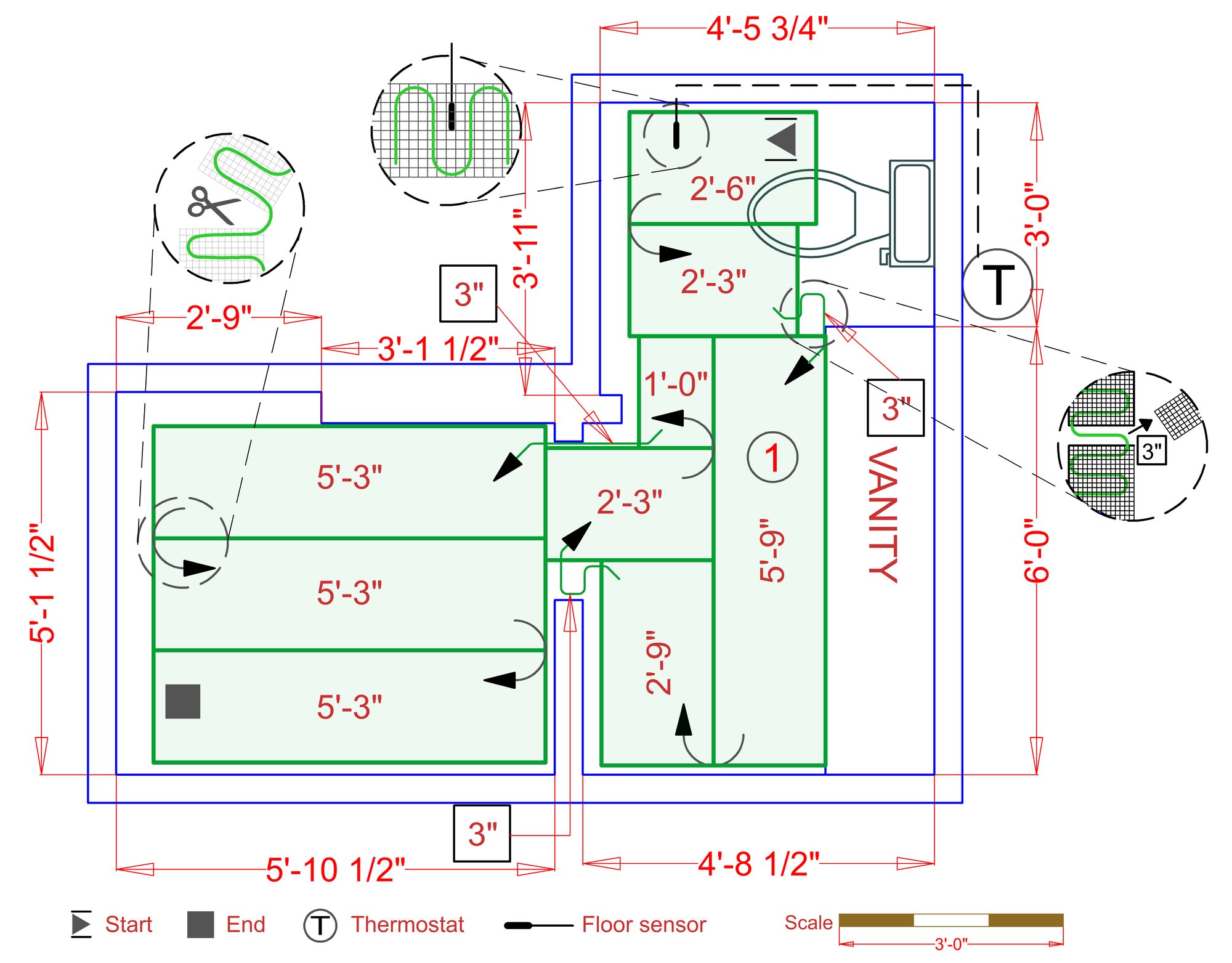
Size: 71 sq.ft. Voltage: 120V Wattage: 743 W Amps: 6 A Flooring: Tile, Marble or Stone Cost/hr *: $0.00

This homeowner in Portland, Oregon, sought to transform their master bathroom from a cold, unwelcoming space into a spa-like retreat. The challenge was a common one: cold tile surfaces, a stark contrast to the Pacific Northwest climate. By installing a 50 sq. ft. WarmlyYours TempZone™ Flex Roll system, the homeowner achieved luxurious floor warming under their beautiful tile, delivering quiet, efficient comfort and adding significant perceived value to their home.


Project Details

  • Location: Portland, OR
  • Heated Space Type: Master Bathroom
  • Heated Square Footage: 50 sq. ft.
  • Watts, Volts, Amps: 743 Watts}, 120 Volts}, 6.2 Amps}
  • Operating Cost Per Hour: $0.0126 per hour 
  • Products Used: TempZone™ Flex Roll (120V) and nJoy WiFi Thermostat


Transforming Cold Tile in Portland

The master bathroom in this Portland, OR home was visually stunning, featuring premium tile surfaces. However, these materials, while beautiful, were perpetually cold underfoot—a significant drawback, especially during Oregon's cooler months. The homeowner recognized that a simple comfort upgrade would completely transform the room's utility and appeal.

The chosen solution was the WarmlyYours TempZone™ Flex Roll, a premium electric floor heating system that delivers 15 watts per square foot for rapid, gentle warmth. Since the subfloor was wood, the thin profile of the TempZone™ Flex Roll was ideal for embedding directly in the mortar beneath the new tile, minimizing floor height changes. The installation was straightforward: the mesh-backed roll was simply cut and turned to fit the custom shape of the 50 sq. ft. area, ensuring even heat distribution across all walking spaces.

The outcome is a perfectly tempered master bathroom floor. The once-cold tile is now warm and inviting, providing the luxurious, spa-like feel the homeowner desired. This low-amperage, energy efficient heating system is easily controlled with the nJoy WiFi Thermostat, allowing the homeowner to program heat schedules and enjoy their in-floor heating only when needed, maximizing comfort and minimizing cost.


Featured Products

TempZone™ Flex Roll A twin-conductor electric radiant floor heating system featuring an electric heating cable pre-spaced on a mesh to ensure consistent heat output of 15 W/sq. ft.} Perfect for tile floors.

nJoy WiFi Thermostat A sleek, programmable thermostat with a Class A GFCI safety built-in. Allows remote control of the floor warming system via a smartphone app for ultimate convenience and efficiency.

Circuit Check A simple-to-use tool to continuously monitor the heating element's electrical continuity during installation, preventing costly damage before the floor covering is laid.

* This 743 Watt electric floor heating system in Portland, OR, costs approximately $0.1263 per hour to run, based on the local residential electricity rate of around $0.17 per kWh. This translates to an affordable luxury of about $1.01 per day when running for 8 hours.

Project Gallery

Quotes

These quotes are linked to this showcase and include the products used in this project or recommended for a similar-sized project.

Frequently Asked Questions

Showing all 4 questions

A 50 sq. ft. electric floor heating system in a master bathroom in Portland, OR, costs approximately $0.0126 per hour to run, based on the local residential electricity rate of around $0.17 per kWh. This translates to less than $3.00 per month, making it an extremely energy efficient and affordable luxury.
Yes, a WarmlyYours TempZone™ system is often powerful enough to act as the sole source of heat in a well-insulated room like this 50 sq. ft. master bathroom, providing superior comfort compared to forced-air systems. However, its primary value is usually as a supplemental heater, providing targeted floor warming where you need it most.
The TempZone™ Flex Roll system is specifically designed for installation under hard-surface flooring materials. In this Portland project, it was installed beneath tile flooring, which are ideal conductors of radiant heat, ensuring maximum comfort and efficiency from the in-floor heating.
Absolutely. Electric radiant floor heating is highly energy efficient because it directly heats the mass of the floor and the objects in the room, not the air. This targeted warmth allows homeowners to lower the air thermostat by a few degrees without sacrificing comfort, leading to energy savings compared to traditional forced-air systems.
Tell Us About Your Project

Our team of Radiant Experts is ready to help.

Typically respond within 1 business day