Contact Us After Hours
Loading...

Loading contact options...

Sign In
Loading...

Loading...


Luxury Warmth for a Large Kitchen & Foyer in Chicago, IL

Seamless Radiant Comfort with TempZone™ Electric Floor Warming Cable Under Tile

Chicago, IL
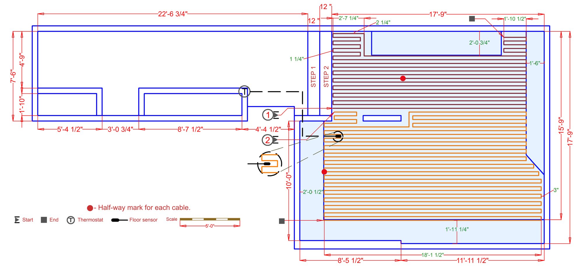
SmartInstall for Kitchen & Foyer with floor heating cable
Size: 342 sq.ft. Voltage: 240V Wattage: 2980 W Amps: 12 A Flooring: Tile, Marble or Stone Cost/hr *: $0.19

This homeowner in the perpetually chilly climate of Chicago, Illinois, faced the common problem of cold, uninviting tile and stone flooring in their expansive kitchen and foyer. To transform these high-traffic areas into welcoming, cozy spaces, they chose a WarmlyYours electric radiant floor heating system. The installation utilized the flexible TempZone™ Cable, providing targeted, energy-efficient floor warming that seamlessly integrates under the tile to deliver premium comfort and significantly enhance the home's value and livability.

Project Details

  • Location: Chicago, IL
  • Heated Space Type: Kitchen & Foyer
  • Heated Square Footage: 247 sq. ft.
  • Total Insulation Surface Area: 342 sq. ft.
  • Wattage: 2980 Watts
  • Voltage: 240 Volts
  • Amps: 12 Amps
  • Flooring: Tile, Marble or Stone 
  • Cost to Run Per Hour: $0.19

Conquering the Cold Tile in Chicagoland

Chicago winters are notorious for extreme cold, which is magnified by the thermal properties of stone and tile flooring. The challenge for this large, combined kitchen and foyer space was to introduce reliable, luxurious floor warming without costly and complex changes to the existing concrete slab subfloor.

WarmlyYours provided a customized solution using the TempZone™ Cable laid over CeraZorb® insulating underlayment. The underlayment acts as a thermal break, directing all the heat upwards into the floor finish for maximum efficiency. The flexible cable was perfect for navigating the expansive and potentially irregular layout of the 247 sq. ft. heated area, ensuring wall-to-wall radiant warmth where it matters most.

By installing the electric floor warming system directly beneath the new tile, the homeowner solved their cold floor problem permanently. The result is a substantial, energy-efficient comfort upgrade that turns a cold welcome home into a warm embrace, even on the coldest Chicago days

Featured Products

  • TempZone™ Floor Heating Cable (240V, 3.7W/ft.): The core of the system. This loose cable is highly flexible, allowing for installation in oddly shaped areas, around fixtures, and over large spaces with customized spacing (3.75" in this project) for optimal heat distribution.2 It is safely embedded in thin-set mortar under the tile.
  • nSpire Touch Thermostat (UDG4-4999-WY): A programmable, easy-to-use touch-screen thermostat that includes a Class A GFCI for safety and a floor sensor to accurately monitor and maintain the desired floor temperature.
  • CeraZorb® Insulating Underlayment: A high-density, low-profile synthetic cork underlayment used as a thermal break to prevent heat from escaping downward into the concrete slab, significantly increasing the system's efficiency and warm-up time.
  • Prodeso Membrane Roll: A decoupling and uncoupling membrane that protects the tile and stone from cracking due to substrate movement, making it the ideal base for the TempZone™ Cable system.

* This high-performance, 2980-Watt system costs just about $0.19 per hour to run. Based on an average Chicago residential electricity rate of 14.44 cents per kWh and a run-time of 8 hours per day.

Project Gallery

Quotes

These quotes are linked to this showcase and include the products used in this project or recommended for a similar-sized project.

Frequently Asked Questions


Based on an average Chicago electricity rate of 14.44 cents per kWh, this 2980-watt system costs approximately $0.19 per hour to operate. Running the system for 8 hours a day totals about $1.52 daily, or roughly $45.60 per month. This is a highly energy-efficient way to provide direct, targeted floor warming for high-use areas.
In some cases, yes. Electric radiant floor heating can serve as the primary heat source if the maximum heat output exceeds the room's maximum heat loss. For a well-insulated home in a city like Chicago, a system like this one, specifically designed for full coverage and incorporating underlayment, can often provide complete heating. A professional heat loss calculation is needed to confirm this for your specific space.
Tile, natural stone, and marble are the best flooring types to pair with electric floor warming systems like TempZone™ Cable. These materials are excellent conductors and hold heat (high thermal mass), allowing the radiant heat to spread evenly and remain warm long after the system turns off, increasing the system's efficiency and comfort level.
Yes, electric floor warming is highly energy efficient, particularly when used as supplemental heat. Unlike forced-air systems that heat the air (which rises and is easily lost), radiant systems heat objects and people directly. By using a programmable thermostat, the system only runs when needed, and adding CeraZorb® insulation maximizes efficiency by directing 90%+ of the heat upward into the living space.
Tell Us About Your Project Our team of Radiant Experts is ready to help.

Contact Us

Have a question? We're here to help.

Loading...
Loading file uploader...

By submitting this form, I understand and agree to WarmlyYours.com's Terms of Use and Privacy Policy.

Please complete the security verification below:

Your information is secure and will never be shared