Contact Us Open

Loading...

Loading contact options...

Sign In

Loading...

Loading...


Luxury Warmth for a Primary Walk-In Closet in North Barrington, IL

Transforming a Cold Room Over a Garage with Electric Floor Heating and Luxury Vinyl Tile

North Barrington, IL
Closet
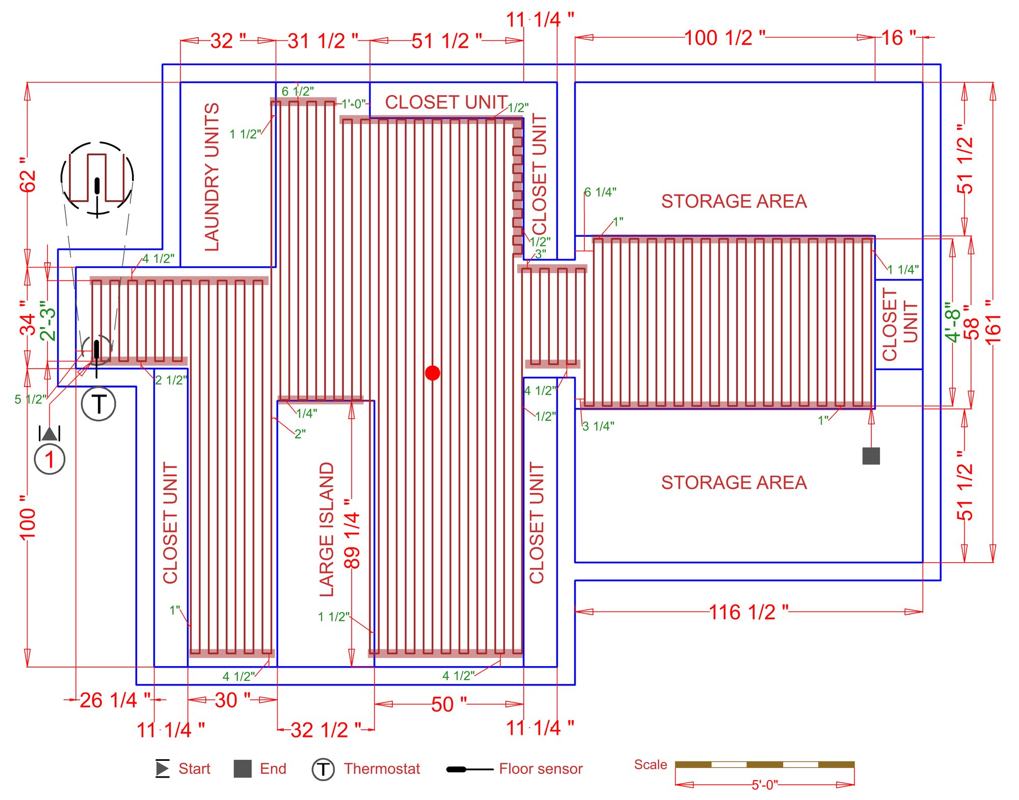
Size: 212 sq.ft. Voltage: 240V Wattage: 2542 W Amps: 11 A Flooring: Resilients, Vinyl and Luxury Vinyl Tile (LVT) Cost/hr *: $0.37

This project features a stunning primary walk-in closet renovation by Kyla "House of Hipster" in North Barrington, IL. Kyla faced a common challenge: a large addition built over a garage that became uncomfortably cold during Illinois winters. By installing a WarmlyYours electric floor heating system, they turned a chilly storage space into a cozy, luxurious retreat, adding significant comfort and value to the home through a successful DIY installation.


Project Details

  • Location: North Barrington, IL
  • Heated Space Type: Primary Walk-In Closet (Addition)
  • Flooring Material: Luxury Vinyl Tile (LVT)
  • Heated Area: 212 sq. ft.
  • System Specs: 240V | 2542 Watts | 10.6 Amps
  • Operating Cost: ~$0.38 per hour (based on average IL rates)
  • Products Used: TempZone™ Cable, nSpire Touch Thermostat, Cable Fixing Strips

Transforming the Primary Walk-In Closet

Challenge: Cold Floors Over the Garage Kyla at House of Hipster were dealing with a spacious 600 sq. ft. addition that included a large primary walk-in closet. Because this section of the house sits directly above the garage, it suffered from significant heat loss, making the floors frigid during the bitter North Barrington winters. The original plan involved a professional contractor, but when they became unavailable, Kyla decided to take matters into their own hands with a DIY installation.

Solution: Flexible Radiant Heating To address the cold drafts and ensure the new Luxury Vinyl Tile (LVT) felt warm underfoot, they selected the TempZone™ Floor Heating Cable. This choice was crucial for a closet layout; the free-form cable allowed for a custom installation that navigated around planned cabinetry and shelving. This flexibility is vital for closets to ensure compliance with NEC (National Electrical Code) requirements regarding heating elements near storage areas.

The Outcome: Efficient Comfort The result is a 212 sq. ft. heated zone that acts as a primary heat source for the space. Despite the room being an "icebox" historically, the electric floor heating system now provides consistent, radiant warmth. The project demonstrates that with the right support and products, Kyla can successfully DIY a sophisticated heating solution that replaces the chill of a garage-top room with the luxury of radiant floor heating.


Featured Products

TempZone™ Floor Heating Cable (240V): chosen for its versatility, this cable allows installers to customize the spacing and layout, making it perfect for irregular rooms or areas with fixed furniture like closet islands.

nSpire Touch Programmable Thermostat: A sleek, white touch-screen thermostat including a floor sensor to precisely monitor and control the in-floor heating temperature.

TempZone™ Cable Fixing Strips: Essential for the DIYer to secure the cable at the correct spacing before the self-leveling cement or adhesive is applied

    * Based on local North Barrington electricity rates (~$0.14/kWh), this 212 sq. ft. system costs approximately $0.37 per hour to operate. This means you can enjoy a warm, luxurious dressing area for just under $3.00 per day during typical usage.

    Project Gallery

    Quotes

    These quotes are linked to this showcase and include the products used in this project or recommended for a similar-sized project.

    Frequently Asked Questions

    Showing all 4 questions

    Yes, but you must follow specific guidelines. According to the NEC (National Electrical Code), heating elements must not be installed directly under storage cabinets or shelves to prevent overheating and fire hazards. Using a system like TempZone™ Cable allows you to stay within the open walking areas and maintain safe clearances.
    Absolutely. LVT is a popular choice for floor warming systems because it conducts heat well. However, it is important to check the flooring manufacturer's temperature limits (usually capped at around 80°F to 85°F) and use a thermostat with a floor sensor to ensure the system stays within those limits.
    Running costs depend on local electricity rates and insulation. For this 212 sq. ft. project in Illinois, the cost is approximately $0.38 per hour while actively heating. Because radiant floor heating is efficient, it often runs only for a few hours a day to maintain temperature, keeping monthly costs reasonable.
    Yes, this is one of the best applications for in-floor heating. Rooms over garages often lose heat through the floor. An electric system applies heat directly to the floor surface, combating the "cold sink" effect of the garage below and making the room feel significantly warmer than forced air alone could.
    Tell Us About Your Project

    Our team of Radiant Experts is ready to help.

    Typically respond within 1 business day